

| タイプ |
Bタイプ |
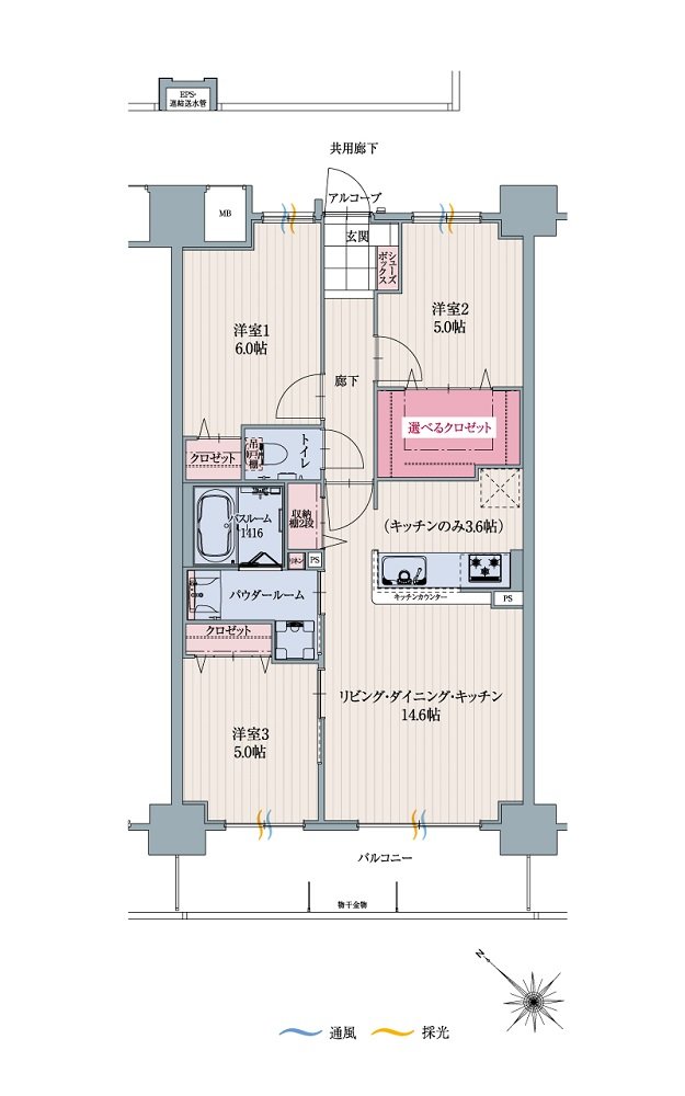
間取り |
3LDK+選べるクロゼット |
|---|---|---|---|
| 専有面積 |
70.39 ㎡ |
バルコニー面積 |
10.24 ㎡ |
| 所在地 |
兵庫県明石市二見町西二見字高落1534番4 |
||
| 交通 |
山陽電鉄本線「西二見」駅 徒歩4分 |
||
| 備考 |
アルコーブ面積:2.55㎡ |
||