

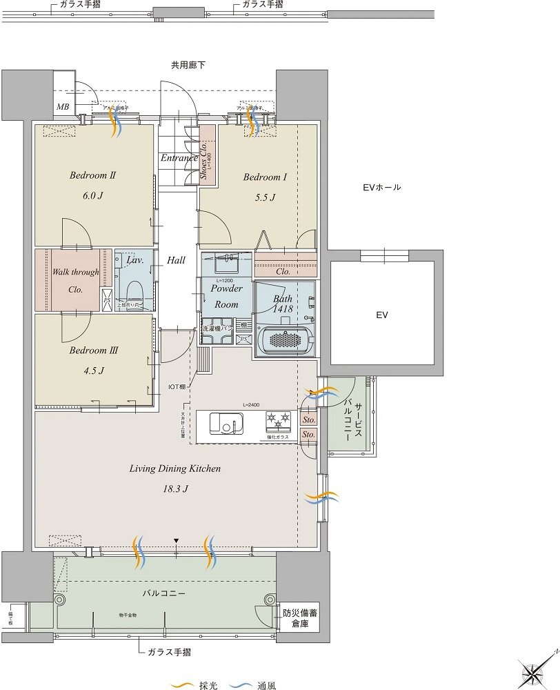
| タイプ |
D type |
間取り |
3LDK+WTC |
|---|---|---|---|
| 専有面積 |
75.07 ㎡ |
バルコニー面積 |
12.2 ㎡ |
| 所在地 |
鹿児島県鹿児島市上之園町錦江町2番1号 |
||
| 交通 |
JR鹿児島本線「鹿児島中央」駅 徒歩9分 |
||
| 備考 |
サービスバルコニー面積:2.40㎡ |
||