
タイプ |
E type |
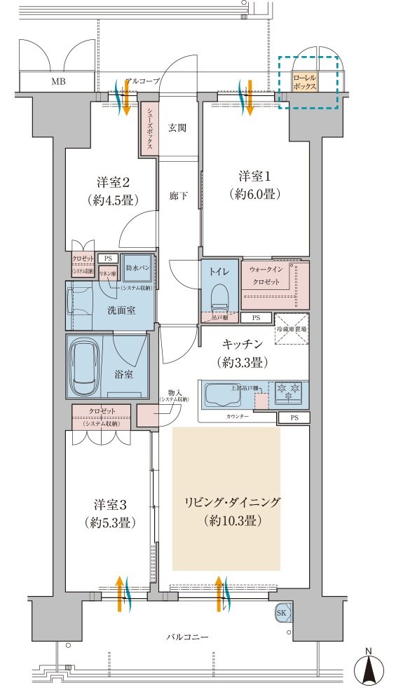
間取り |
3LDK |
---|---|---|---|
専有面積 |
66.39 ㎡ |
バルコニー面積 |
- |
所在地 |
大阪府大阪市東住吉区北田辺4丁目16番3(地番) |
||
交通 |
近鉄南大阪線「北田辺」駅 徒歩4分 |
||
備考 |
バルコニー面積:10.51㎡(3F~11F)※2F、12F~14F:10.53㎡ |