
タイプ |
SIタイプ |
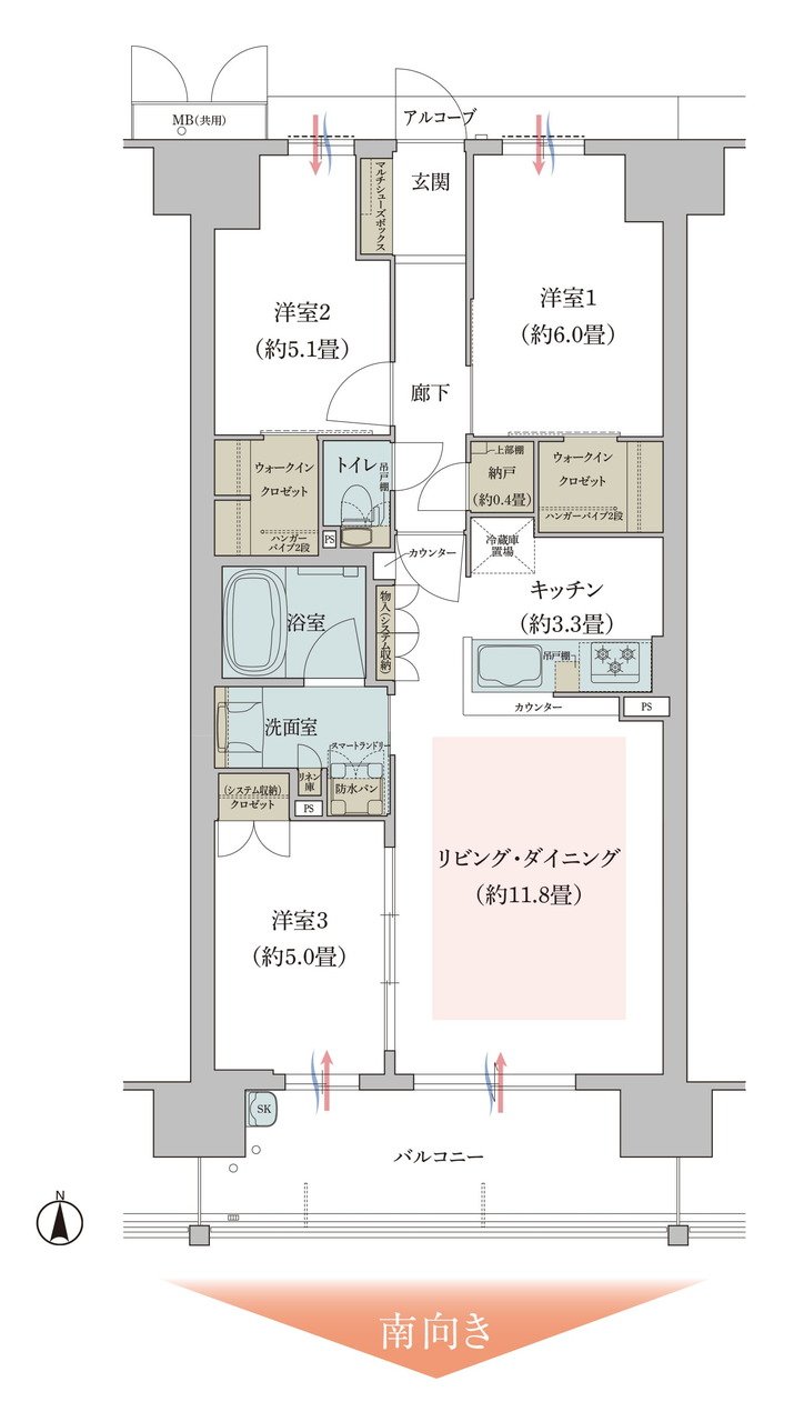
間取り |
3LDK+N+2WIC |
---|---|---|---|
専有面積 |
70.80 ㎡ |
バルコニー面積 |
10.80 ㎡ |
所在地 |
大阪府堺市北区新金岡町4丁8番2(地番) |
||
交通 |
地下鉄御堂筋線「新金岡」駅 徒歩10分 |
||
備考 |
アルコーブ面積:3.03㎡ |