アットホーム 新築マンション

印刷する

このウィンドウを閉じる

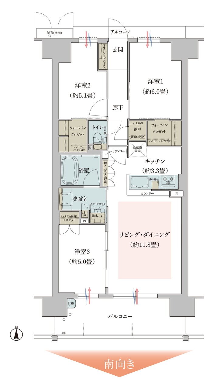
ガーデンシティ新金岡 SIタイプ

ガーデンシティ新金岡 間取り SIタイプ
タイプ

SIタイプ

間取り

3LDK+N+2WIC

専有面積

70.8 ㎡

バルコニー面積

10.8 ㎡

所在地

大阪府堺市北区新金岡町4丁8番2(地番)

交通

地下鉄御堂筋線「新金岡」駅 徒歩10分

備考

アルコーブ面積:3.03㎡

  • アルコーブ
  • 可変式間仕切り
  • ウォークインクローゼット
  • スロップシンク
  • 南向き
  • フラットフロア

印刷する

このウィンドウを閉じる

アットホーム Copyright(c) At Home Co.,Ltd. このサイトに掲載している情報の無断転載を禁止します。著作権はアットホーム(株)またはその情報提供者に帰属します。