

| タイプ |
A type |
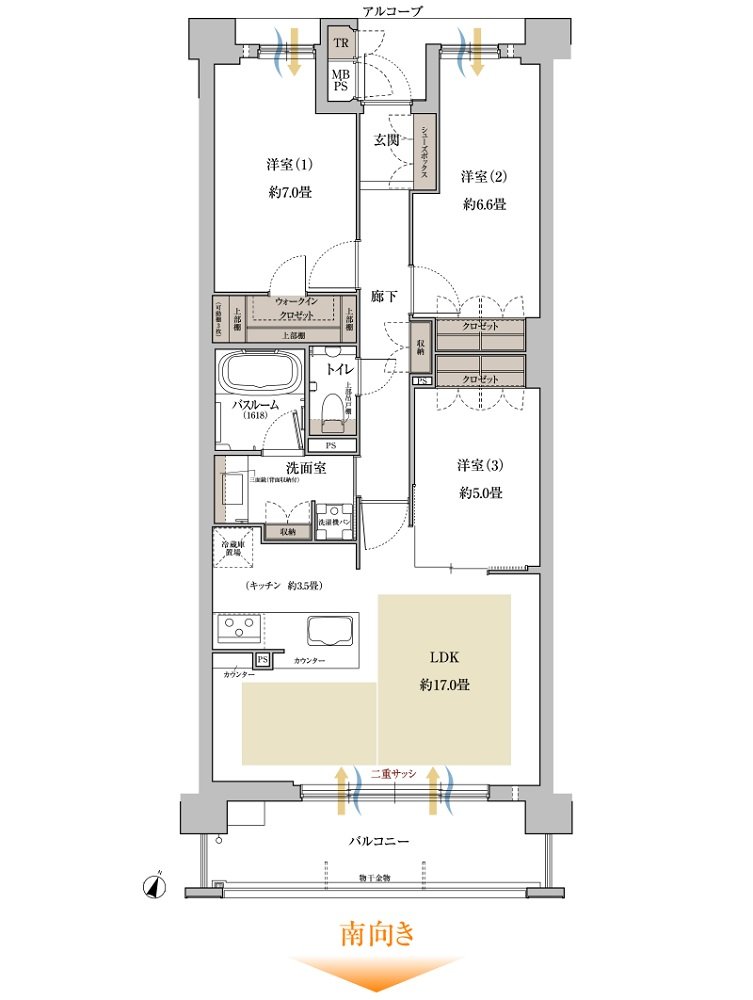
間取り |
3LDK |
|---|---|---|---|
| 専有面積 |
80.52 ㎡ |
バルコニー面積 |
10.45 ㎡ |
| 所在地 |
兵庫県芦屋市宮塚町17番5-(部屋番号)号(住居表示実施地区) |
||
| 交通 |
JR東海道本線「芦屋」駅 徒歩9分 |
||
| 備考 |
アルコーブ面積:2.97㎡ |
||