
タイプ |
K type |
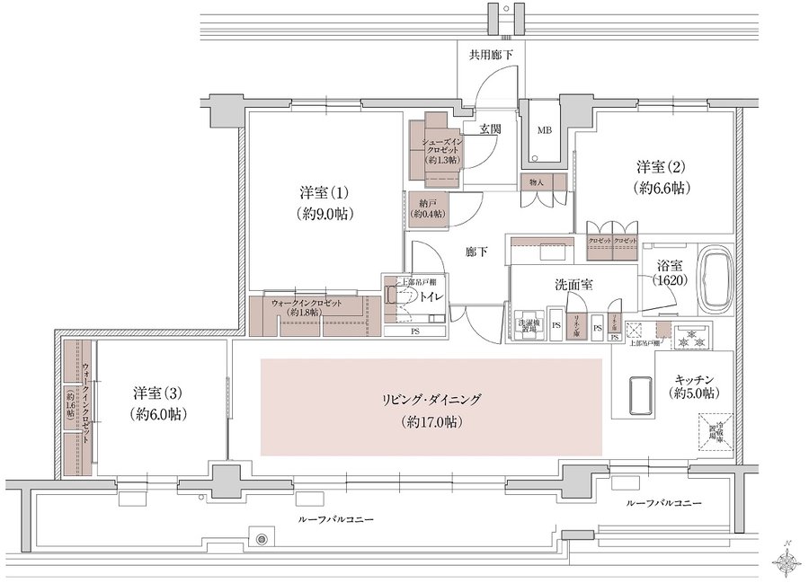
間取り |
3LDK |
---|---|---|---|
専有面積 |
100.52 ㎡ |
バルコニー面積 |
- |
所在地 |
愛媛県松山市岩崎町1丁目270番3、270番9 |
||
交通 |
伊予鉄道城南線「道後公園」駅 徒歩5分 |
||
備考 |
【最上階プレミアムプラン】 |