
タイプ |
J type |
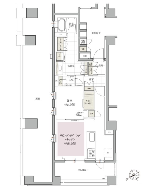
間取り |
1LDK+WIC |
---|---|---|---|
専有面積 |
55.46 ㎡ |
バルコニー面積 |
10.94 ㎡ |
所在地 |
東京都調布市小島町2丁目29番1他(地番) |
||
交通 |
京王線「調布」駅 徒歩5分(中央口) |
||
備考 |
宅配BOX面積:0.42㎡ |