

| タイプ |
D type |
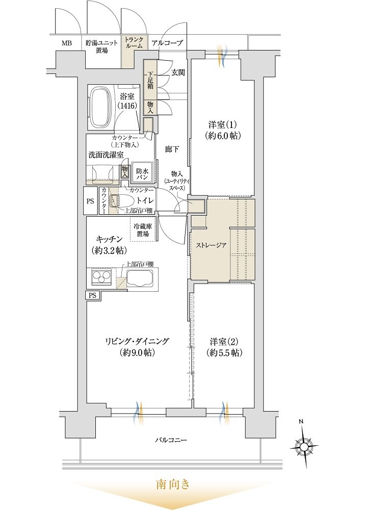
間取り |
2LDK+ストレージア |
|---|---|---|---|
| 専有面積 |
59.55 ㎡ |
バルコニー面積 |
8.8 ㎡ |
| 所在地 |
京都府京都市南区久世上久世町637番1(地番) |
||
| 交通 |
JR東海道本線「桂川」駅 徒歩9分(東口) |
||
| 備考 |
アルコーブ面積/1.70㎡ |
||