

| タイプ |
A-B type(先着順) |
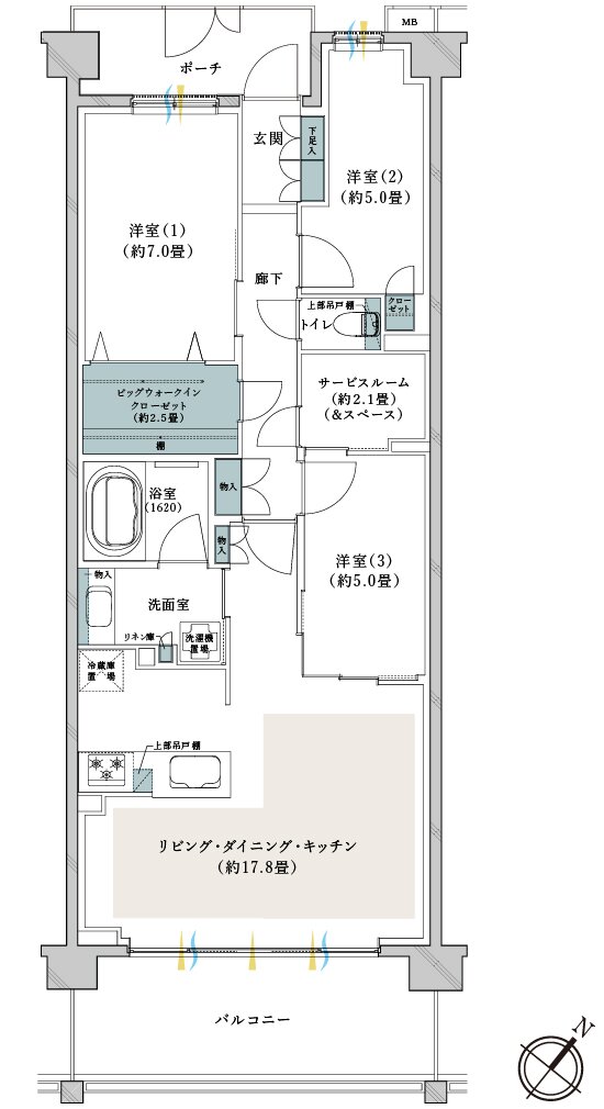
間取り |
3LDK+S+BW |
|---|---|---|---|
| 専有面積 |
82.21 ㎡ |
バルコニー面積 |
12.8 ㎡ |
| 所在地 |
神奈川県横浜市磯子区汐見台1丁目2-2(地番) |
||
| 交通 |
京急本線「上大岡」駅 バス11分「浜小学校前」 停歩3分 |
||
| 備考 |
ポーチ面積:5.9㎡ |
||