
タイプ |
G TYPE |
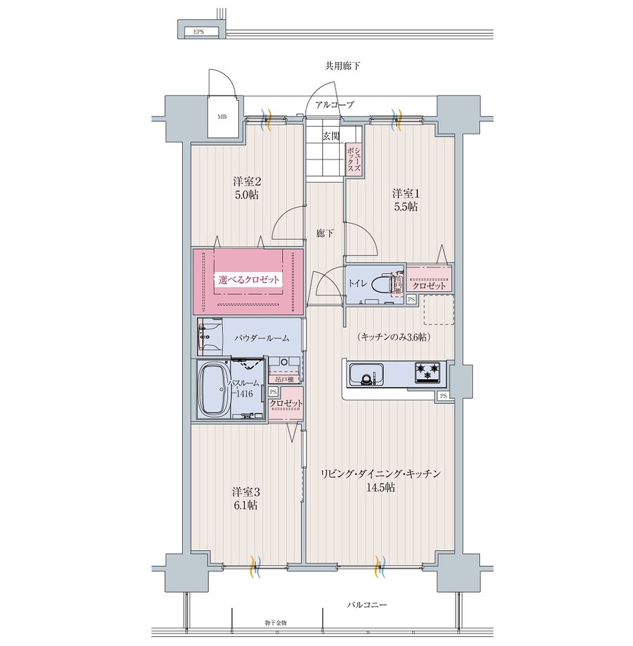
間取り |
3LDK+選べるクロゼット |
---|---|---|---|
専有面積 |
70.09 ㎡ |
バルコニー面積 |
9.82 ㎡ |
所在地 |
兵庫県明石市魚住町清水字猫谷40番1、40番7 |
||
交通 |
JR山陽本線「魚住」駅 徒歩8分 |
||
備考 |
アルコーブ面積:2.62㎡ |