

| タイプ |
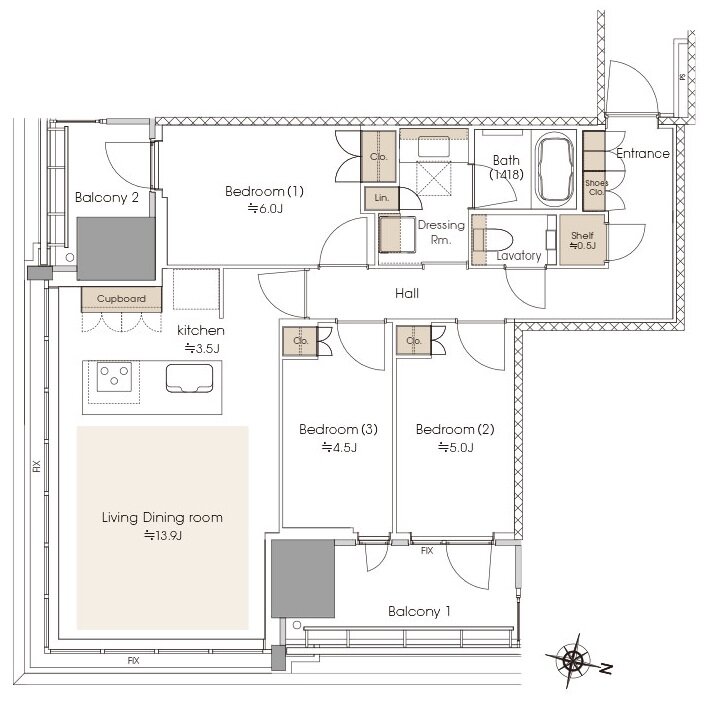
75Aseタイプ |
間取り |
3LDK+N |
|---|---|---|---|
| 専有面積 |
75.1 ㎡ |
バルコニー面積 |
- |
| 所在地 |
東京都港区港南3丁目7-2(地番) |
||
| 交通 |
JR山手線「品川」駅 徒歩13分港南口 |
||
| 備考 |
バルコニー1 面積:7.88㎡ |
||