

| タイプ |
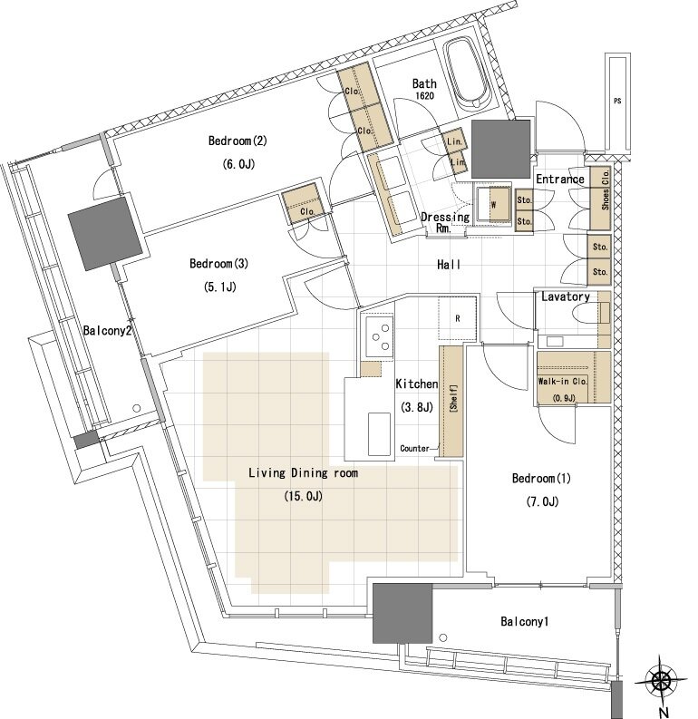
S-80Aneタイプ |
間取り |
3LDK+WIC |
|---|---|---|---|
| 専有面積 |
84.63 ㎡ |
バルコニー面積 |
- |
| 所在地 |
東京都港区港南3丁目7-2(地番) |
||
| 交通 |
JR山手線「品川」駅 徒歩13分港南口 |
||
| 備考 |
バルコニー1面積:6.91㎡ |
||