
タイプ |
C TYPE |
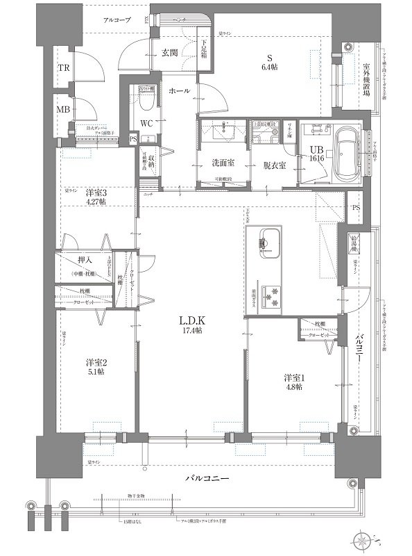
間取り |
3LDK+S |
---|---|---|---|
専有面積 |
84.48 ㎡ |
バルコニー面積 |
20.40 ㎡ |
所在地 |
福岡県北九州市小倉北区浅野2丁目2-250(地番) |
||
交通 |
JR鹿児島本線「小倉」駅 徒歩7分 |
||
備考 |
アルコーブ面積:6.43㎡ |