

| タイプ |
N TYPE |
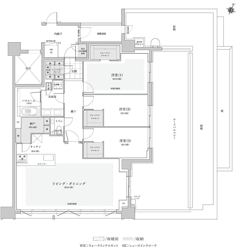
間取り |
3LDK+SIC+3WIC+納戸 |
|---|---|---|---|
| 専有面積 |
122.97 ㎡ |
バルコニー面積 |
- |
| 所在地 |
愛知県名古屋市千種区堀割町1丁目6番、池下町2丁目65番1(地番) |
||
| 交通 |
名古屋市東山線「池下」駅 徒歩3分 |
||
| 備考 |
ルーフバルコニー面積:44.70㎡ |
||