

| タイプ |
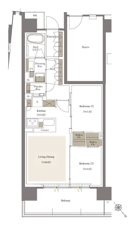
A-55Oタイプ |
間取り |
2LDK+2WIC |
|---|---|---|---|
| 専有面積 |
55.30 ㎡ |
バルコニー面積 |
- |
| 所在地 |
東京都文京区小石川4丁目70番17(地番) |
||
| 交通 |
東京メトロ丸ノ内線「後楽園」駅 徒歩12分サブエントランスより/8番出口まで |
||
| 備考 |
バルコニー面積:11.60㎡(2階~8階・10階)12.93㎡(9階) |
||