
タイプ |
A-76Aタイプ |
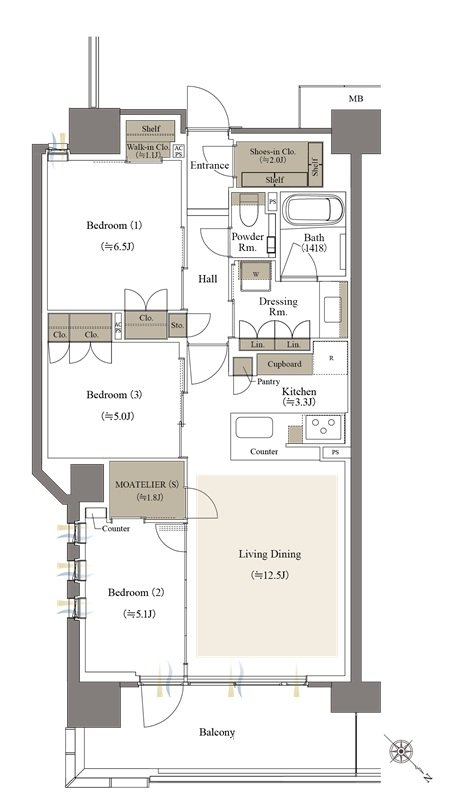
間取り |
3LDK+MOATELIER(S)+WIC+SIC |
---|---|---|---|
専有面積 |
76.81 ㎡ |
バルコニー面積 |
- |
所在地 |
東京都文京区小石川4丁目70番17(地番) |
||
交通 |
東京メトロ丸ノ内線「後楽園」駅 徒歩12分サブエントランスより/8番出口まで |
||
備考 |
バルコニー面積/12.00㎡(2・3・5~7・10階) 12.42㎡(4階)12.60㎡(8階)13.31㎡(9階) |