
タイプ |
A type |
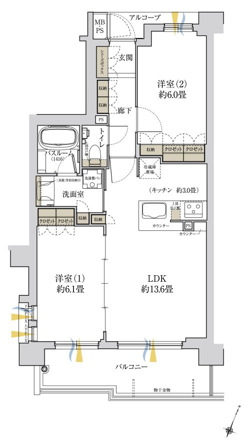
間取り |
2LDK |
---|---|---|---|
専有面積 |
57.17 ㎡ |
バルコニー面積 |
9.61 ㎡ |
所在地 |
兵庫県神戸市東灘区本山南町4丁目3番21-〈部屋番号〉号(住居表示) |
||
交通 |
JR東海道本線「摂津本山」駅 徒歩9分 |
||
備考 |
アルコーブ面積:2.40㎡ |