

| タイプ |
B type |
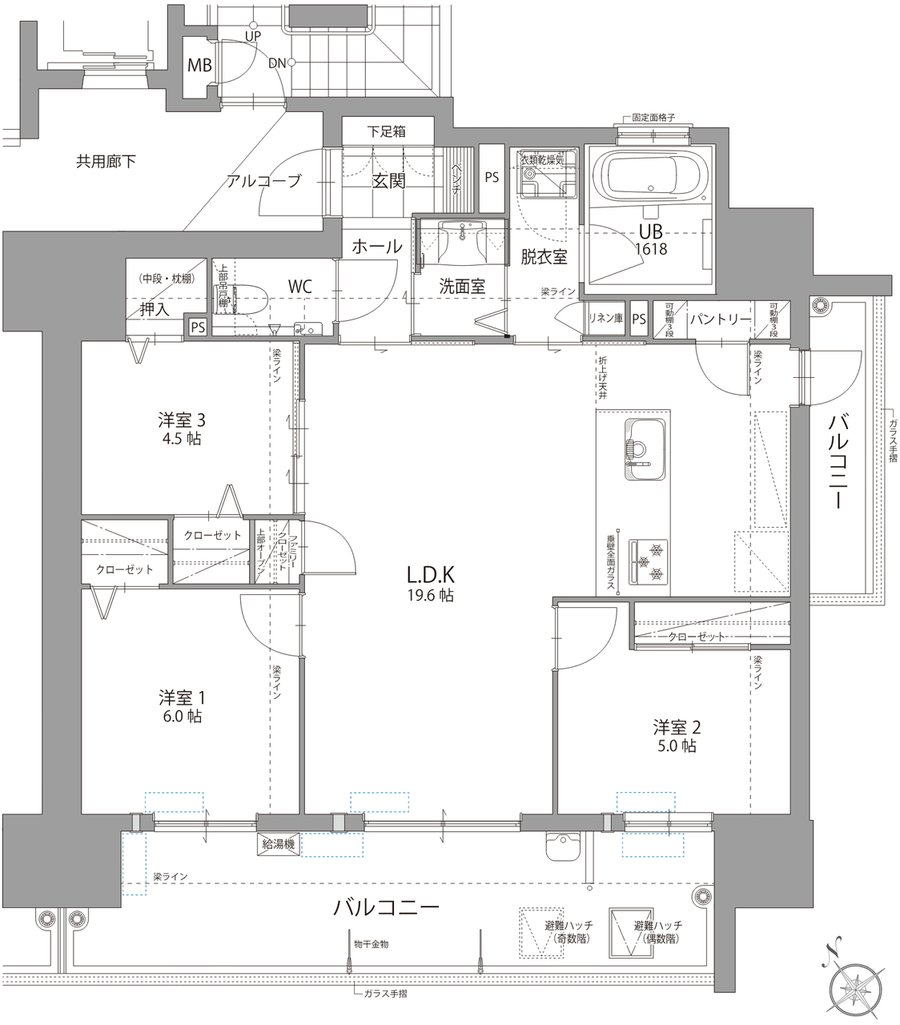
間取り |
3LDK |
|---|---|---|---|
| 専有面積 |
79.63 ㎡ |
バルコニー面積 |
20.59 ㎡ |
| 所在地 |
福岡県北九州市門司区老松町1-6、1-28(地番) |
||
| 交通 |
JR鹿児島本線「門司港」駅 徒歩10分 |
||
| 備考 |
アルコーブ面積:2.24㎡ |
||