

| タイプ |
Eタイプ |
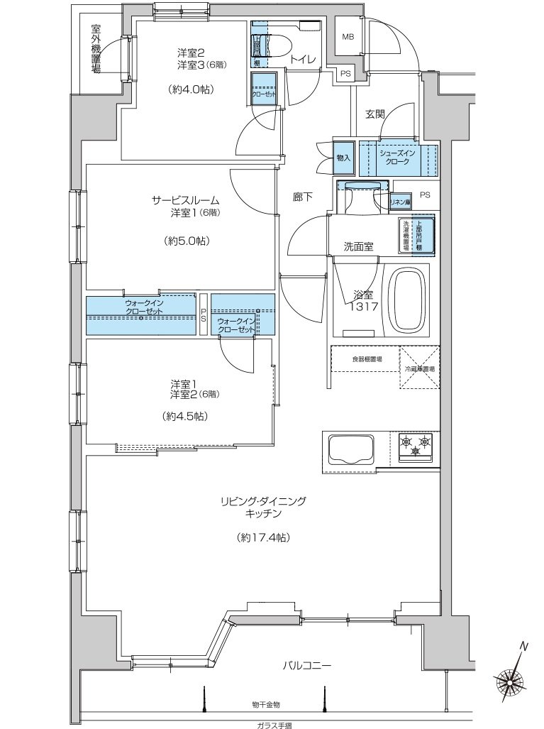
間取り |
2LDK+S+2WIC+SIC |
|---|---|---|---|
| 専有面積 |
68.92 ㎡ |
バルコニー面積 |
9.06 ㎡ |
| 所在地 |
神奈川県大和市深見西7丁目582-1(地番) |
||
| 交通 |
小田急江ノ島線「鶴間」駅 徒歩9分 |
||
| 備考 |
2LDK+S+2WIC+SIC(2~5階) |
||