
タイプ |
Dgタイプ |
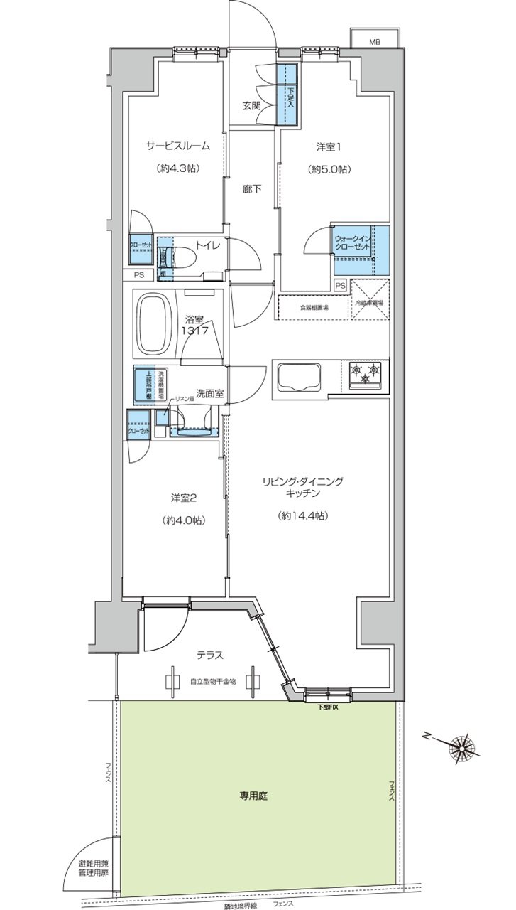
間取り |
2LDK+S+WIC |
---|---|---|---|
専有面積 |
58.92 ㎡ |
バルコニー面積 |
- |
所在地 |
神奈川県大和市深見西7丁目582-1(地番) |
||
交通 |
小田急江ノ島線「鶴間」駅 徒歩9分 |
||
備考 |
テラス面積:4.93㎡ |