

| タイプ |
O' type |
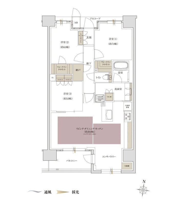
間取り |
3LDK+2WIC+N |
|---|---|---|---|
| 専有面積 |
87.85 ㎡ |
バルコニー面積 |
6.84 ㎡ |
| 所在地 |
大阪府大東市住道2丁目1320番1(地番) |
||
| 交通 |
JR片町線「住道」駅 徒歩1分 |
||
| 備考 |
アルコーブ面積:3.58㎡ |
||