

| タイプ |
Eタイプ |
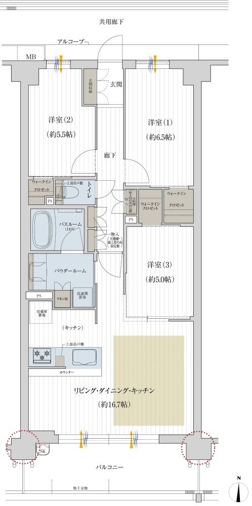
間取り |
3LDK+3WIC |
|---|---|---|---|
| 専有面積 |
75.47 ㎡ |
バルコニー面積 |
11.21 ㎡ |
| 所在地 |
岐阜県大垣市林町6丁目80番56(地番) |
||
| 交通 |
東海道本線「大垣」駅 徒歩7分 |
||
| 備考 |
アルコーブ面積:3.18㎡ |
||