
タイプ |
I type MENU PLAN2 |
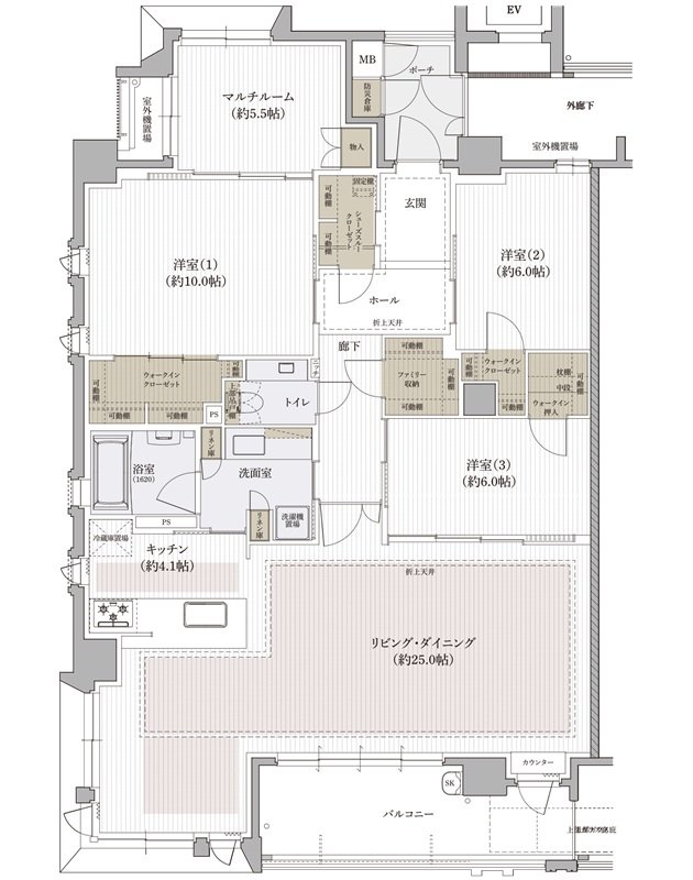
間取り |
3LDK +マルチルーム |
---|---|---|---|
専有面積 |
126.89 ㎡ |
バルコニー面積 |
11.52 ㎡ |
所在地 |
愛媛県松山市上市1丁目40番3 |
||
交通 |
伊予鉄道城南線「道後公園」駅 徒歩8分 |
||
備考 |
※防災倉庫面積:0.48㎡を含む |