

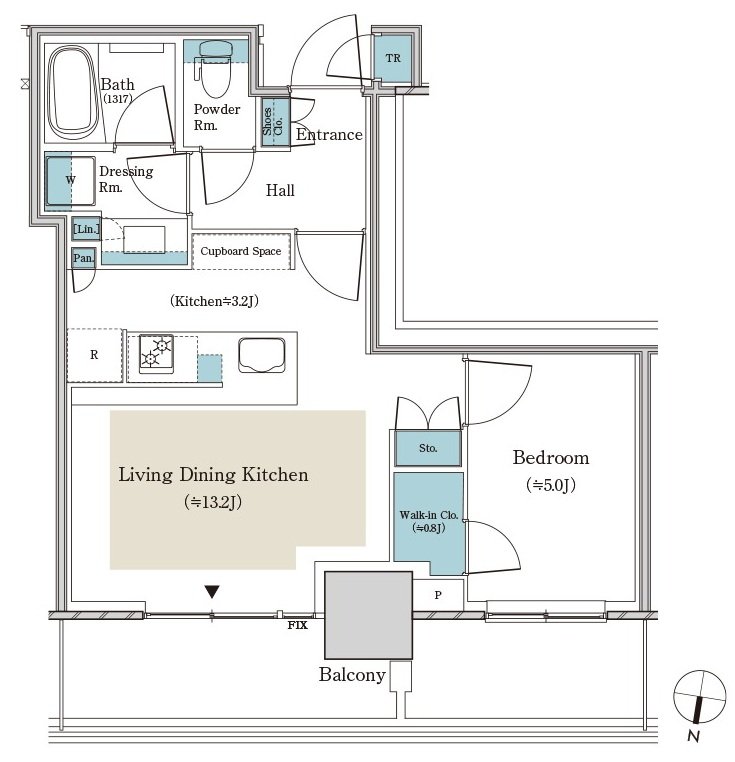
| タイプ |
S-43Anタイプ |
間取り |
1LDK+WIC+TR |
|---|---|---|---|
| 専有面積 |
43.43 ㎡ |
バルコニー面積 |
11.78 ㎡ |
| 所在地 |
大阪府大阪市北区堂島浜2丁目4番1他(地番) |
||
| 交通 |
JR東海道本線「大阪」駅 徒歩10分 |
||
| 備考 |
※トランクルーム面積:0.42㎡含む |
||