
タイプ |
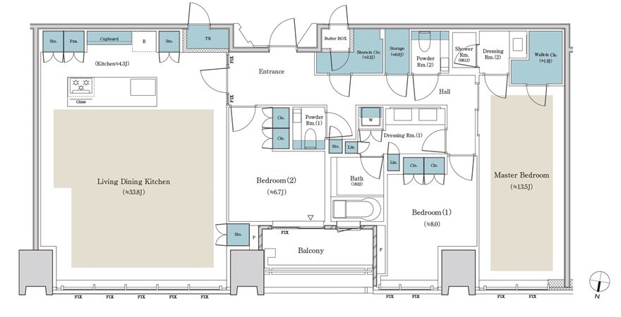
P-150Cnタイプ |
間取り |
3LDK+WIC+SIC+S+TR+BB |
---|---|---|---|
専有面積 |
150.07 ㎡ |
バルコニー面積 |
5.85 ㎡ |
所在地 |
大阪府大阪市北区堂島浜2丁目4番1他(地番) |
||
交通 |
JR東海道本線「大阪」駅 徒歩10分 |
||
備考 |
※専有面積にトランクルーム面積:1.26㎡、バトラーボックス面積:0.88㎡含む |