

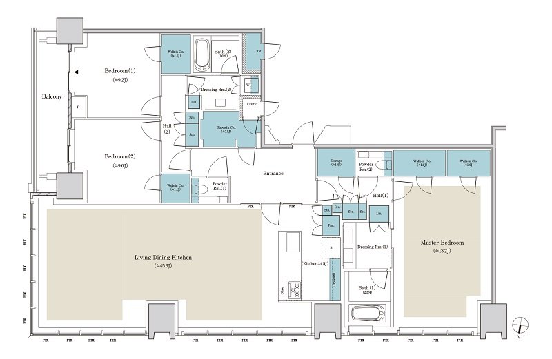
| タイプ |
P-200Aneタイプ |
間取り |
3LDK+4WIC+SIC+S+TR |
|---|---|---|---|
| 専有面積 |
200.85 ㎡ |
バルコニー面積 |
11 ㎡ |
| 所在地 |
大阪府大阪市北区堂島浜2丁目4番1他(地番) |
||
| 交通 |
JR東海道本線「大阪」駅 徒歩10分 |
||
| 備考 |
※専有面積にトランクルーム面積:1.40㎡、ユーティリティ面積:0.87㎡含む |
||