

| タイプ |
A type |
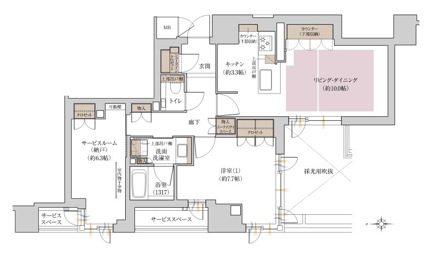
間取り |
1LDK+S |
|---|---|---|---|
| 専有面積 |
65.99 ㎡ |
バルコニー面積 |
- |
| 所在地 |
京都府京都市中京区河原町通二条下る2丁目下丸屋町413-44番他(地番) |
||
| 交通 |
地下鉄東西線「京都市役所前」駅 徒歩1分(出入口1) |
||
| 備考 |
サービススペース面積/4.51㎡ |
||