
タイプ |
Jタイプ |
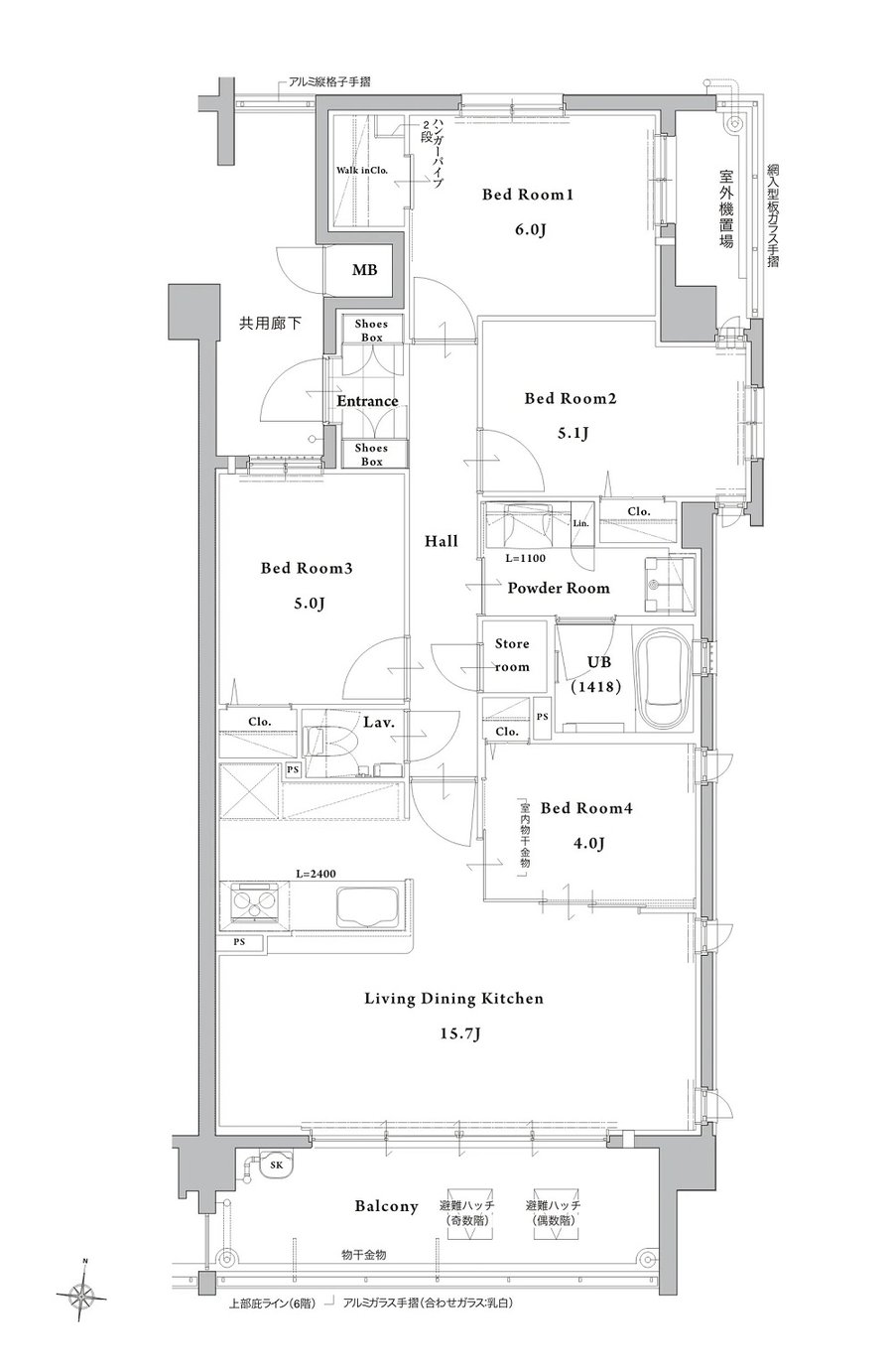
間取り |
4LDK+WIC+Store room |
---|---|---|---|
専有面積 |
79.63 ㎡ |
バルコニー面積 |
10.8 ㎡ |
所在地 |
福岡県太宰府市通古賀3丁目20番6 |
||
交通 |
西鉄天神大牟田線「都府楼前」駅 徒歩4分 |
||
備考 |
室外機置場面積:3.48㎡ |