
タイプ |
Kr type |
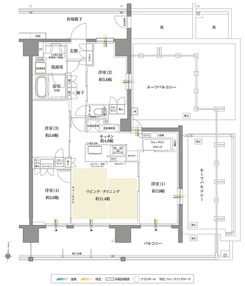
間取り |
4LDK+WIC |
---|---|---|---|
専有面積 |
82.29 ㎡ |
バルコニー面積 |
20.99 ㎡ |
所在地 |
兵庫県尼崎市上坂部1丁目211番2(地番) |
||
交通 |
JR福知山線「塚口」駅 徒歩7分(JR宝塚線) |
||
備考 |
ルーフバルコニー面積:31.54㎡ |