
タイプ |
Ht TYPE |
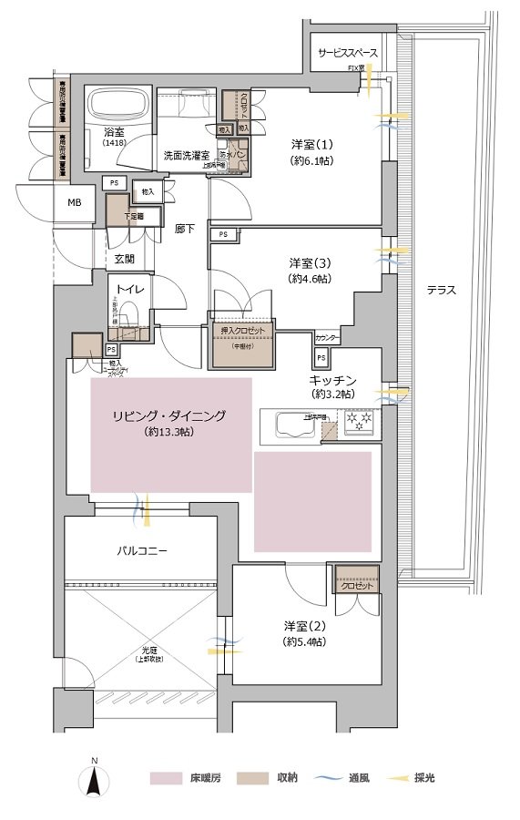
間取り |
3LDK |
---|---|---|---|
専有面積 |
72.24 ㎡ |
バルコニー面積 |
5.02 ㎡ |
所在地 |
京都府京都市北区小山西大野町33番、小山北大野町4番(地番) |
||
交通 |
地下鉄烏丸線「北大路」駅 徒歩6分(出入口2) |
||
備考 |
テラス面積:22.10㎡ |