
タイプ |
C type |
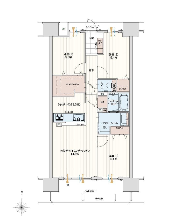
間取り |
3LDK +ミタスモクロゼット |
---|---|---|---|
専有面積 |
70.20 ㎡ |
バルコニー面積 |
11.16 ㎡ |
所在地 |
群馬県高崎市堰代町48番1、赤坂町94番3 |
||
交通 |
JR高崎線「高崎」駅 徒歩20分 |
||
備考 |
アルコーブ面積:2.91㎡ |