

| タイプ |
A type |
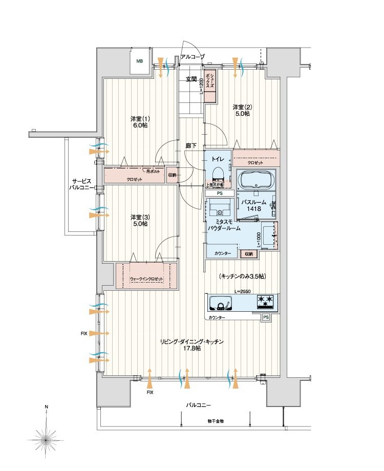
間取り |
3LDK +ミタスモパウダールーム+ウォークインクロゼット |
|---|---|---|---|
| 専有面積 |
75.72 ㎡ |
バルコニー面積 |
12.06 ㎡ |
| 所在地 |
群馬県高崎市堰代町48番1、赤坂町94番3 |
||
| 交通 |
JR高崎線「高崎」駅 徒歩20分 |
||
| 備考 |
アルコーブ面積:2.90㎡ |
||