

| タイプ |
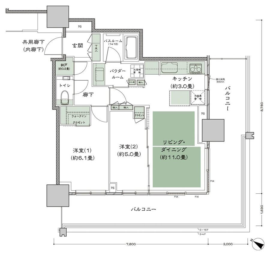
E-60D-2(EC) type |
間取り |
2LDK+N+WIC |
|---|---|---|---|
| 専有面積 |
58.62 ㎡ |
バルコニー面積 |
- |
| 所在地 |
兵庫県神戸市中央区新港町71番1(地番) |
||
| 交通 |
JR東海道本線「三ノ宮」駅 徒歩16分 |
||
| 備考 |
バルコニー面積:31.13㎡(3F)、28.01㎡(4〜16F) |
||