

| タイプ |
I type(select1) |
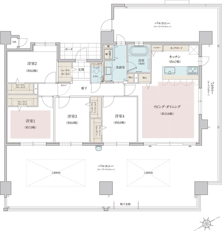
間取り |
4LDK |
|---|---|---|---|
| 専有面積 |
105.83 ㎡ |
バルコニー面積 |
53.48 ㎡ |
| 所在地 |
福岡県福岡市東区和白2丁目1211番11(地番) |
||
| 交通 |
JR香椎線「和白」駅 徒歩8分(630m) |
||
| 備考 |
ルーフバルコニー面積:57.42㎡ |
||