
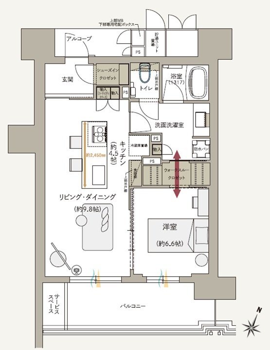
タイプ |
Cタイプ |
間取り |
1LDK |
---|---|---|---|
専有面積 |
52.56 ㎡ |
バルコニー面積 |
10.29 ㎡ |
所在地 |
兵庫県神戸市中央区中山手通2丁目3番46の一部(地番) |
||
交通 |
阪急神戸線「神戸三宮」駅 徒歩6分 |
||
備考 |
アルコーブ面積:3.66㎡ |