
タイプ |
Jタイプ |
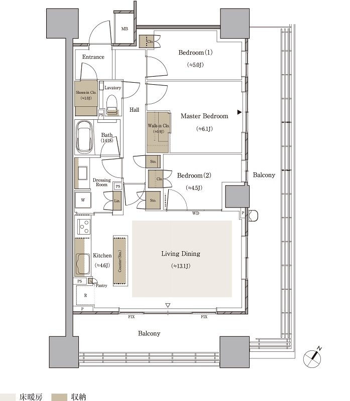
間取り |
3LDK+WIC+SIC |
---|---|---|---|
専有面積 |
77.28 ㎡ |
バルコニー面積 |
36.95 ㎡ |
所在地 |
神奈川県川崎市多摩区登戸字戊耕地2129番7外17筆 土地区画整理事業施工地区内51街区1-1画地他(仮換地指定済)(地番) |
||
交通 |
小田急小田原線「向ヶ丘遊園」駅 徒歩2分 |