アットホーム 新築マンション

印刷する

このウィンドウを閉じる

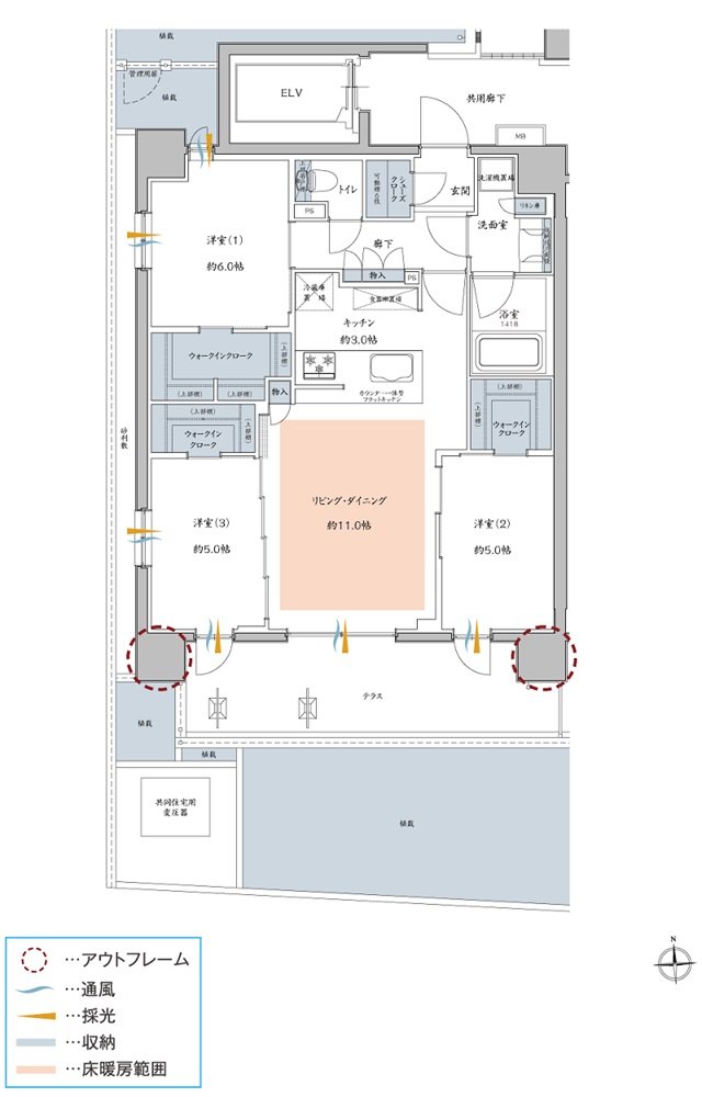
サンクレイドル南葛西 Ag type

サンクレイドル南葛西 間取り Ag type
タイプ

Ag type

間取り

3LDK+3WIC+SC

専有面積

72.68 ㎡

バルコニー面積

-

所在地

東京都江戸川区南葛西4丁目6-17(地番)

交通

JR京葉線「葛西臨海公園」駅 徒歩18分
東京メトロ東西線「葛西」駅 徒歩22分
JR京葉線「葛西臨海公園」駅 バス5分「堀江団地」 停歩2分 他

備考

テラス面積:14.35㎡

  • 可変式間仕切り
  • ウォークインクローゼット
  • テラス

印刷する

このウィンドウを閉じる

アットホーム Copyright(c) At Home Co.,Ltd. このサイトに掲載している情報の無断転載を禁止します。著作権はアットホーム(株)またはその情報提供者に帰属します。