
タイプ |
Bタイプ |
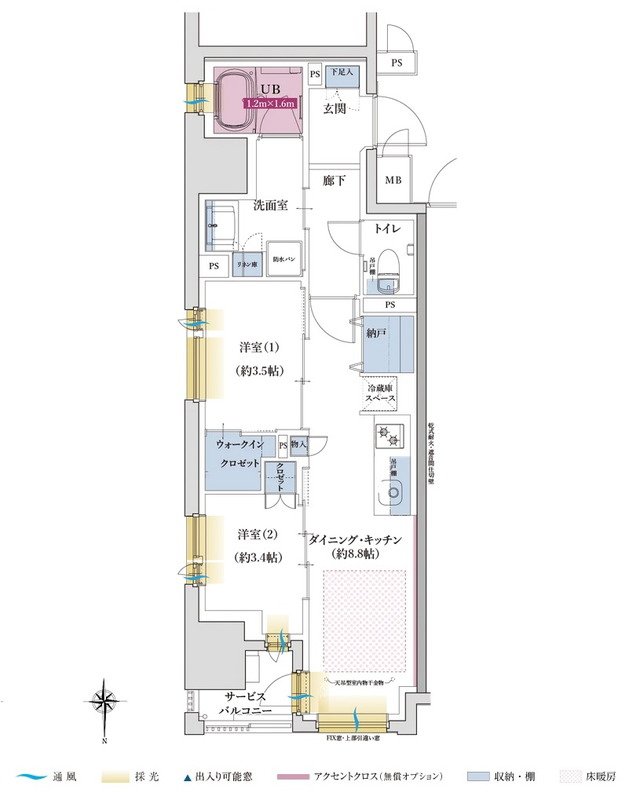
間取り |
2DK+ウォークインクロゼット+納戸 |
---|---|---|---|
専有面積 |
44.33 ㎡ |
バルコニー面積 |
- |
所在地 |
京都府京都市下京区堀川通仏光寺下る吉水町324(地番) |
||
交通 |
地下鉄烏丸線「四条」駅 徒歩10分 |
||
備考 |
サービスバルコニー面積:2.72㎡ |