アットホーム 新築マンション

印刷する

このウィンドウを閉じる

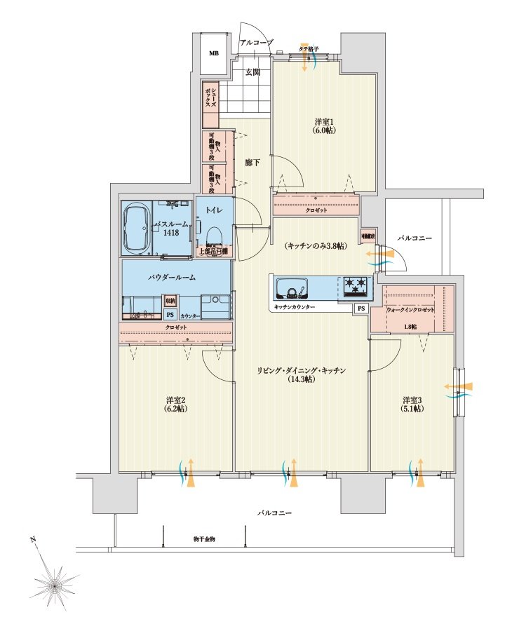
アルファステイツ四日市城北町 E type

アルファステイツ四日市城北町 間取り E type
タイプ

E type

間取り

3LDK +ウォークインクロゼット

専有面積

75.46 ㎡

バルコニー面積

20.46 ㎡

所在地

三重県四日市市城北町254-1

交通

近鉄湯の山線「近鉄四日市」駅 徒歩13分
近鉄名古屋線「近鉄四日市」駅 徒歩13分
近鉄湯の山線「中川原」駅 徒歩11分 他

備考

アルコーブ面積 /2.14㎡

  • アルコーブ
  • ウォークインクローゼット
  • 出入口が2か所以上あるキッチン
  • 2面バルコニー
  • 南向き

印刷する

このウィンドウを閉じる

アットホーム Copyright(c) At Home Co.,Ltd. このサイトに掲載している情報の無断転載を禁止します。著作権はアットホーム(株)またはその情報提供者に帰属します。