

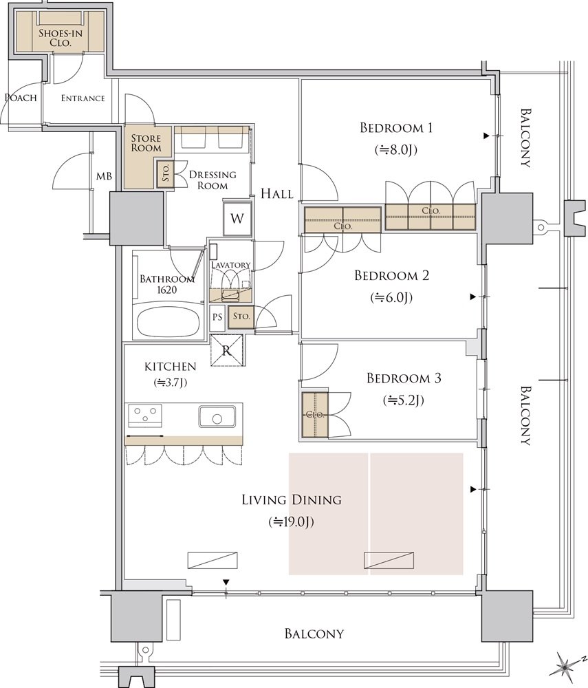
| タイプ |
E-E type(21~29F) |
間取り |
3LDK+SR+SIC |
|---|---|---|---|
| 専有面積 |
100.61 ㎡ |
バルコニー面積 |
- |
| 所在地 |
熊本県熊本市西区春日3丁目2191-2 |
||
| 交通 |
JR鹿児島本線「熊本」駅 徒歩4分 |
||
| 備考 |
バルコニー面積(21~25F):33.99㎡ |
||