

| タイプ |
Jタイプ MENU PLAN |
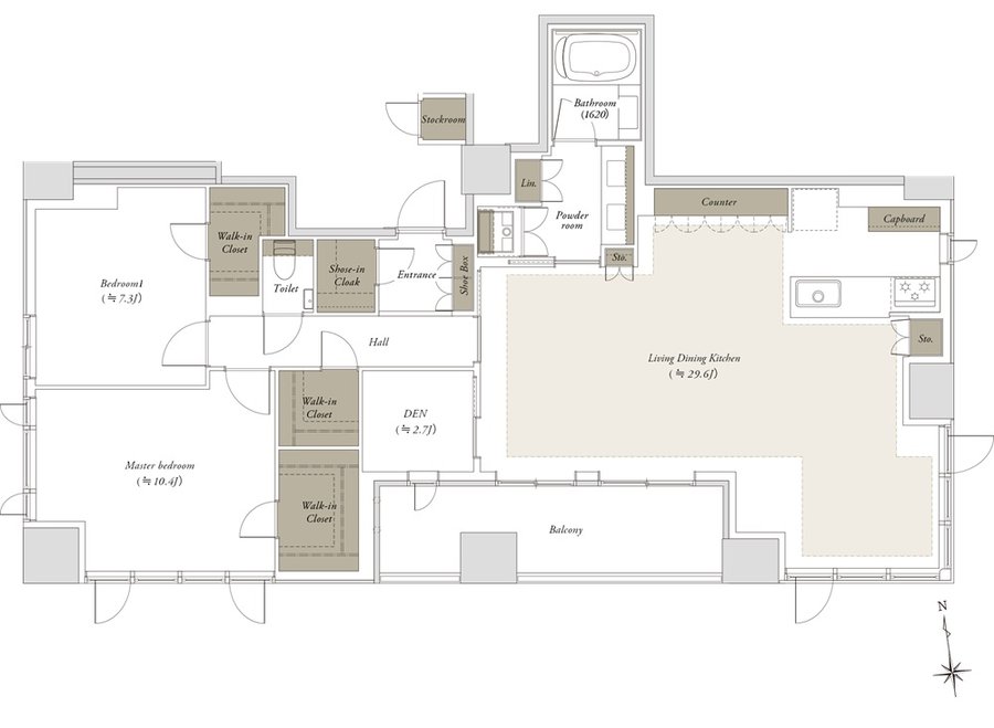
間取り |
2LDK+DEN+FC+2WIC+SIC |
|---|---|---|---|
| 専有面積 |
116.9 ㎡ |
バルコニー面積 |
11.52 ㎡ |
| 所在地 |
愛知県名古屋市中区栄3丁目2209番2 |
||
| 交通 |
名古屋市名城線「矢場町」駅 徒歩7分 |
||
| 備考 |
防災備蓄倉庫面積/0.76㎡ |
||