アットホーム 新築マンション

印刷する

このウィンドウを閉じる

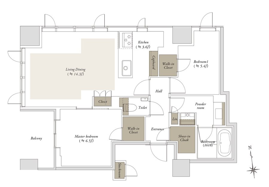
タワー・ザ・ファースト栄三丁目 Lタイプ

タワー・ザ・ファースト栄三丁目 間取り Lタイプ
タイプ

Lタイプ

間取り

2LDK+2WIC+SIC

専有面積

70.41 ㎡

バルコニー面積

5.58 ㎡

所在地

愛知県名古屋市中区栄3丁目2209番2

交通

名古屋市名城線「矢場町」駅 徒歩7分
名古屋市東山線「栄」駅 徒歩11分
名古屋市名城線「栄」駅 徒歩11分

備考

防災備蓄倉庫面積/0.57㎡

  • 玄関からリビングが見えない間取り
  • ウォークインクローゼット
  • シューズインクローゼット
  • 西向き

印刷する

このウィンドウを閉じる

アットホーム Copyright(c) At Home Co.,Ltd. このサイトに掲載している情報の無断転載を禁止します。著作権はアットホーム(株)またはその情報提供者に帰属します。