

| タイプ |
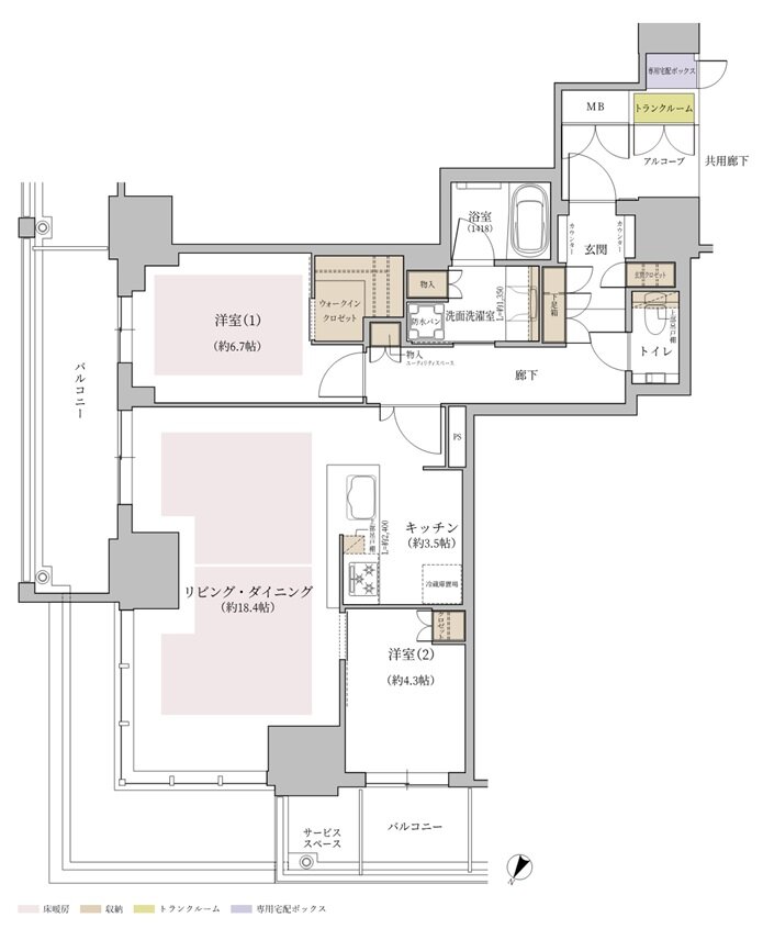
SKタイプ(13階) |
間取り |
2LDK |
|---|---|---|---|
| 専有面積 |
78.5 ㎡ |
バルコニー面積 |
13.85 ㎡ |
| 所在地 |
大阪府大阪市淀川区十三東1丁目21番3他(地番) |
||
| 交通 |
阪急神戸線「十三」駅 徒歩3分(東改札口) |
||
| 備考 |
アルコーブ面積/3.33㎡ |
||