

| タイプ |
Hタイプ |
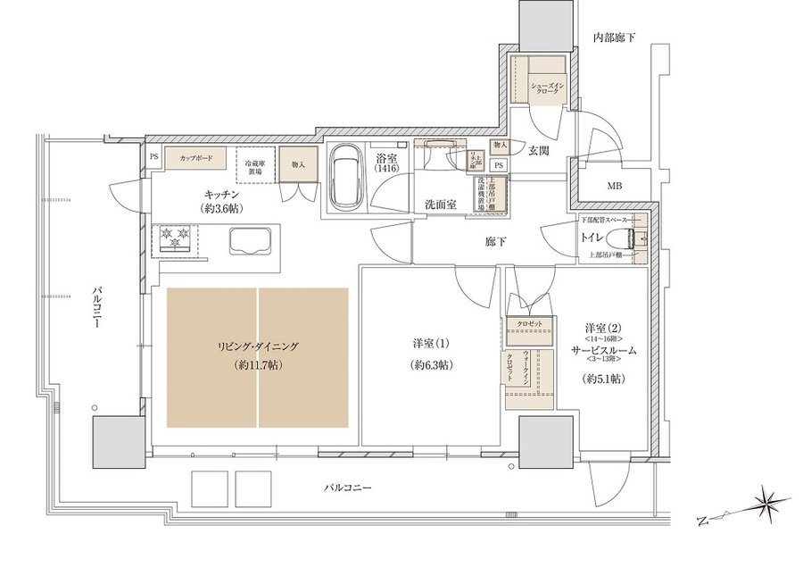
間取り |
1LDK+S+WIC+SIC |
|---|---|---|---|
| 専有面積 |
62.67 ㎡ |
バルコニー面積 |
- |
| 所在地 |
愛知県名古屋市千種区内山3丁目3306番(地番) |
||
| 交通 |
名古屋市東山線「今池」駅 徒歩1分 |
||
| 備考 |
1LDK+S+WIC+SIC(3階~13階) |
||