

| タイプ |
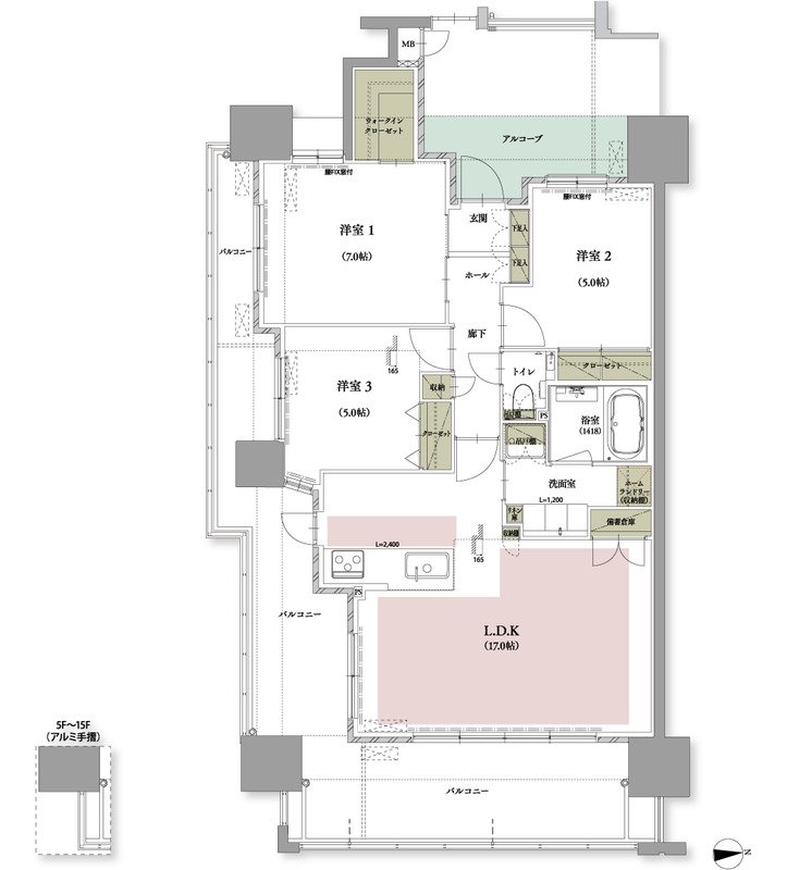
Cタイプ |
間取り |
3LDK |
|---|---|---|---|
| 専有面積 |
74.74 ㎡ |
バルコニー面積 |
29.16 ㎡ |
| 所在地 |
鹿児島県鹿児島市上之園町22-11 |
||
| 交通 |
バス利用:バス停「甲南高校前」 停歩1分(鹿児島市営バス) |
||
| 備考 |
専有面積に備蓄倉庫面積0.73㎡含む |
||