
タイプ |
A-K type(先着順) |
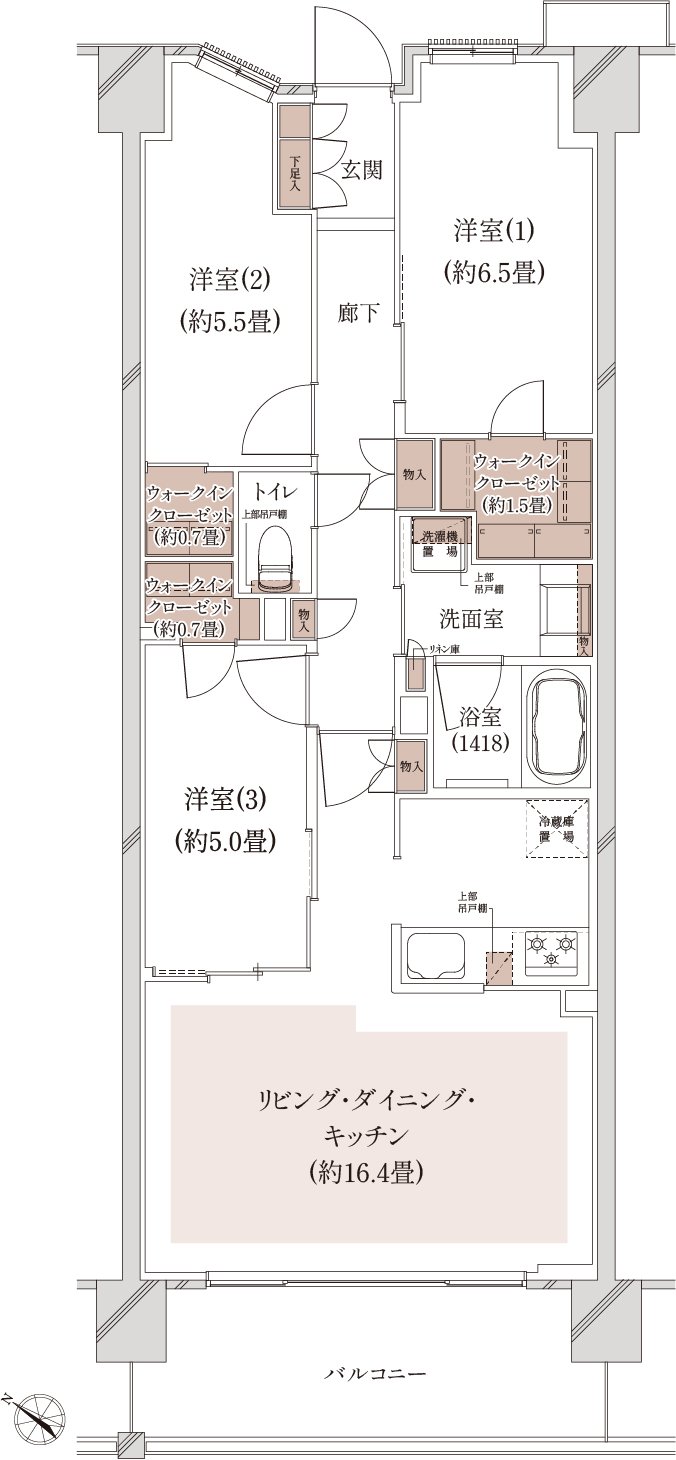
間取り |
3LDK+3WIC |
---|---|---|---|
専有面積 |
76.23 ㎡ |
バルコニー面積 |
10.0 ㎡ |
価格 |
6418万円 |
||
所在地 |
神奈川県鎌倉市台3丁目666番1(地番) |
||
交通 |
湘南モノレール「富士見町」駅 徒歩3分 |