アットホーム 新築マンション

印刷する

このウィンドウを閉じる

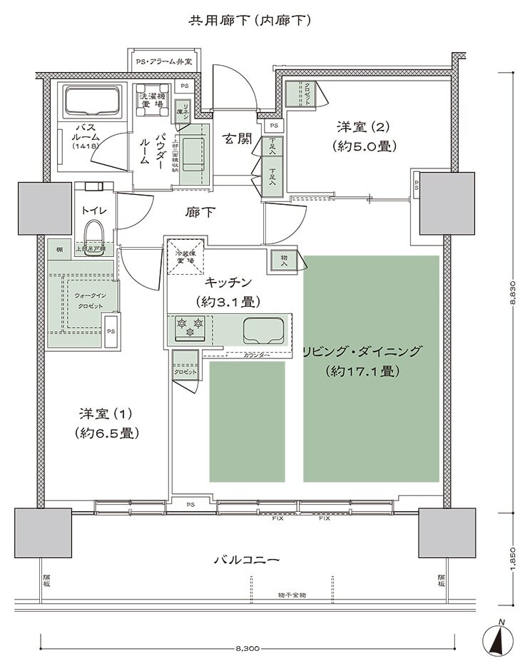
シティタワー札幌ザ・レジデンス D-2 type

シティタワー札幌ザ・レジデンス 間取り D-2 type
タイプ

D-2 type

間取り

2LDK+WIC

専有面積

70.46 ㎡

バルコニー面積

15.07 ㎡

所在地

北海道札幌市東区北七条東3丁目28番11(地番)

交通

札幌市東豊線「さっぽろ」駅 徒歩7分※15番出入口利用
札幌市南北線「さっぽろ」駅 徒歩7分※15番出入口利用
JR函館本線「札幌」駅 徒歩10分

備考

トランクルーム面積:0.90㎡

  • 玄関からリビングが見えない間取り
  • 広いリビング
  • ウォークインクローゼット
  • 南向き

印刷する

このウィンドウを閉じる

アットホーム Copyright(c) At Home Co.,Ltd. このサイトに掲載している情報の無断転載を禁止します。著作権はアットホーム(株)またはその情報提供者に帰属します。