
タイプ |
N2gタイプ |
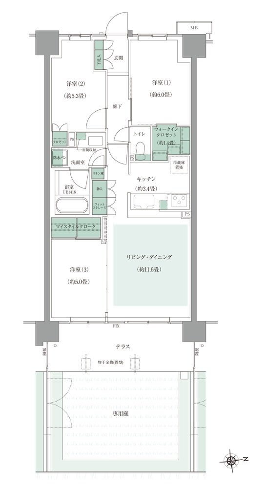
間取り |
3LDK+MC+WIC |
---|---|---|---|
専有面積 |
68.70 ㎡ |
バルコニー面積 |
- |
所在地 |
東京都小平市花小金井南町1丁目130番11号、131番2号(地番) |
||
交通 |
西武新宿線「花小金井」駅 徒歩4分 |
||
備考 |
テラス面積 11.40m² ■専用庭面積 25.20m² |