

| タイプ |
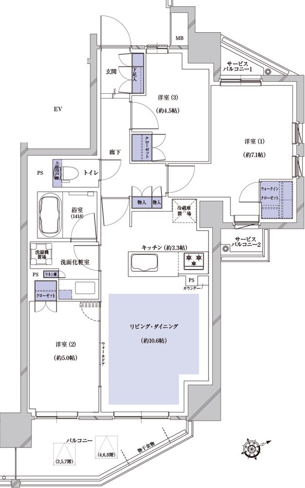
Hタイプ |
間取り |
3LDK+WIC |
|---|---|---|---|
| 専有面積 |
69.05 ㎡ |
バルコニー面積 |
8.25 ㎡ |
| 所在地 |
埼玉県朝霞市宮戸2丁目2006番1(地番) |
||
| 交通 |
JR武蔵野線「北朝霞」駅 徒歩16分 |
||
| 備考 |
サービスバルコニー1面積:1.62㎡ |
||